Рампа азотная на 10 баллонов (2х5) тип РА-10спец

Рампа азотная на 10 баллонов (2×5) тип РА-10спец предназначена для непрерывного снабжения азотом потребителей от баллонов давлением до 20 Мпа (200 кгс/см2). Рампа состоит из двух ветвей и стеллажей. На каждой ветви установлено по 5 вентилей ВК-94 для присоединения баллонов через змеевик. Давление и количество газа, выходящего с рампы, регулируются редуктором РАО-50 (0- 25 м3/ч) в пределах от 0−2,4 кгс/см2.
Комплект поставки, блок высокого давления:
Коллектор — 2 шт.
Рамповый вентиль ВК-94 — 10 шт.
Манометровый вентиль КС 7153−05 — 2 шт.
Манометр кл. 1,5, макс. значение шкалы 250 кгс/см2 — 2 шт.
Предохранительный клапан отрегулированный на давление срабатывания 165 кгс/см2 (16, 5 МПа) — 2 шт.
Редуктор РАО-50, макс. рабочее давление 2,4 кгс/см2 (0,24 МПа) и пропускной способностью 25 м3/ч — 2 шт.
Змеевик, соединяющий редуктор с блоком низкого давления. Змеевик с шаро-ниппельным соединением и резьбой М16Х1,5 — 1 шт.
Компенсатор (змеевик), соединяющий баллон с коллектором и резьбой G ¾ «трубная — 10 шт. Стеллаж для закрепления 5-ти баллонов — 2 шт.
Комплект поставки, блок низкого давления:
Коллектор – 1шт.
Клапан обратный ОКИ-1, с пропускной способностью 25 м3/ч.
Клапан предохранительный, отрегулированный на давление срабатывания 2,4 кгс/см2 (0,24 МПа). Манометровый вентиль КС 7153-05 – 1 шт.
Манометр, кл. 1,5, макс. значение шкалы прибора 4 кгс/см2 (0,4 МПа) – 1 шт.

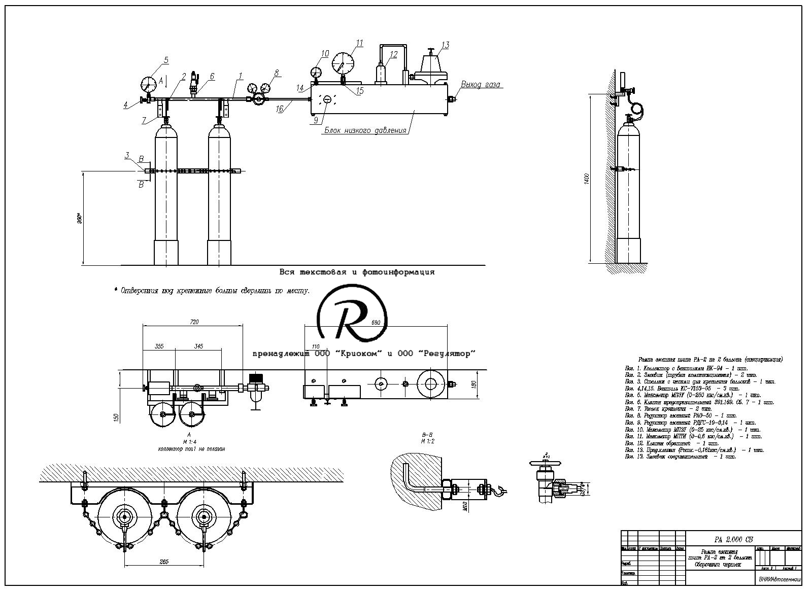
Рампа азотная на 2 баллона тип РА-10спец

Рампа азотная на 2 баллона типа РА-2спец предназначена для непрерывного снабжения азотом потребителей от баллонов давлением до 20 Мпа (200 кгс/см2). Рампа состоит из коллектора и блока низкого давления. На ветви установлено 2 вентиля ВК-94 для присоединения баллонов через змеевик. Давление и количество газа, выходящего с рампы, регулируются редуктором РДГС-10−0,14 (0- 10 м3/ч) в пределах от 0−0,161 кгс/см2.
Комплект поставки, блок высокого давления:
Коллектор — 2 шт.
Рамповый вентиль ВК-94 — 10 шт.
Манометровый вентиль КС 7153−05 — 2 шт.
Манометр кл. 1,5, макс. значение шкалы 250 кгс/см2 — 2 шт.
Предохранительный клапан отрегулированный на давление срабатывания 165 кгс/см2 (16, 5 МПа) — 2 шт.
Редуктор РАО-50, макс. рабочее давление 2,4 кгс/см2 (0,24 МПа) и пропускной способностью 25 м3/ч — 2 шт.
Змеевик, соединяющий редуктор с блоком низкого давления. Змеевик с шаро-ниппельным соединением и резьбой М16Х1,5 — 1 шт.
Компенсатор (змеевик), соединяющий баллон с коллектором и резьбой G ¾ «трубная — 10 шт. Стеллаж для закрепления 2 баллонов — 1 шт.
Комплект поставки, блок низкого давления:
Редуктор РДГС-10−0,14 — 1 шт.
Манометр, кл. 1,5 (вх. давление), макс. значение шкалы прибора 25 кгс/см2 (2,5 МПа) — 1 шт.
Манометр, кл. 0,6 (раб. давление), макс. значение шкалы прибора 0,6 кгс/см2 (0,06 МПа) — 1 шт.
Манометровый вентиль КС 7153−05 — 2 шт.
Клапан обратный — 1 шт.
Клапан предохранительный, отрегулированный на давление срабатывания 0,161 кгс/см2 (0,0161 МПа) ПСК-25.
Технические характеристики (рампа 2Х5, рампа 2Х10)
Наибольшее давление газа, МПа (кгс/см²)
Давление газа после редуктора, МПа (кгс/см²)
Рабочий газ
20 (200)
20 (200)
0,014 (0,14)
0,24 (2,4)
азот
азот
Габаритные размеры (длина х ширина х высота), м
3,81х0,62х1,6
3,36х0,3х1,6
Масса, кг
96
50
Общие сведения
Редуктор низкого давления снабжен предохранительным клапаном, установленным внутри верхней крышки редуктора. При случайном нажатии регулировочным винтом Рраб. 0,16 – 0,2 кгс/см2, клапан откроется и будет сбрасывать газ в атмосферу через отверстие в крышке редуктора. Из редуктора газ проходит через обратный клапан шарового типа и выходит в магистраль. В блоке низкого давления на редукторе РДГС-10-0,14, установлено рабочее давление 0,14 кгс/см2 (0,014 МПа). Нажимной винт зафиксирован контргайкой. Для изменения установленного давления необходимо отвернуть контргайку и установить необходимое рабочее давление (не более 0,16 кгс/см2). Предохранительный клапан ПСК-25 настроен на давление срабатывания 0, 161 кгс/см2 (0,0161 МПа). Перенастройку осуществлять по паспорту ПСК-25.000000 ПС.