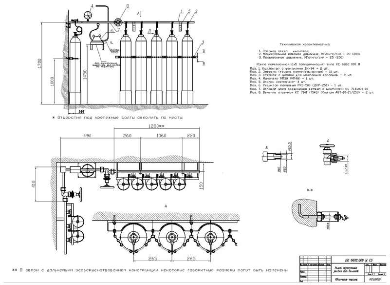
Рампа баллонная наполнительная

Рампа наполнительная предназначена для наполнения газом потребителей от баллонов давлением до 20 МПа (200 кгс/см2).Рампа состоит из коллектора (ветви) и стеллажа. На ветви установлено 5 вентилей (ВК-94) для присоединения баллонов через змеевик. Один конец трубки присоединяется непосредственно к баллону, а второй к вентилю, установленному на коллекторе. На ветви установлен вентиль (ВК-94) для выпуска газа. На соединительной ветви установлен предохранительный клапан высокого давления, отсечной вентиль КС-7141 (7144,7142) и манометр. Рампа изготовлена в климатическом исполнении УХЛ2 по ГОСТ 15 150.
Основные преимущества: применение облегченных стеллажей и уголков крепления позволило снизить общий вес рамп; использование импортной молотковой эмали позволило получить высококачественное, а главное прочное покрытие; в базовый комплект поставки уже включены крепежные изделия.
Таблица зависимости давления кислорода в баллоне от температуры при номинальных давлениям при 20 °C 150 и 200 кгс/см²
Температура в °С
Температура в °С
-50
99
126
-40
107
136
-35
110
142
-30
113
147
-25
117
153
-20
121
158
-15
125
163
-10
128
169
-5
132
+-5
174
+-10
0
135
179
+5
139
184
+10
143
190
+15
145
150
195
+20
200
+25
154
206
+30
157
211
+35
161
217
+40
165
221
+50
172
231
Давление
в баллоне
Давление
в баллоне
150 кгс/см²
Допускаемое отклонение
Допускаемое отклонение
Давление
в баллоне
Давление
в баллоне
Допускаемое отклонение
Допускаемое отклонение
200 кгс/см²
Сертификат соответствия ГОСТ Р № РОСС RU.АЯ04.СО1375