Секция баллонов СБ

Обозначение изделия: Секция баллонов СБ (Рампа баллонов РБ).
Секция баллонов СБ (Рампа баллонов РБ) предназначена для приема компримированного воздуха от передвижной (штатной) компрессорной станции, хранения необходимого запаса сжатого воздуха и выдачи сжатого воздуха давлением до 20 (15) МПа (200-150 кгс/см2) потребителям.
Назначение.
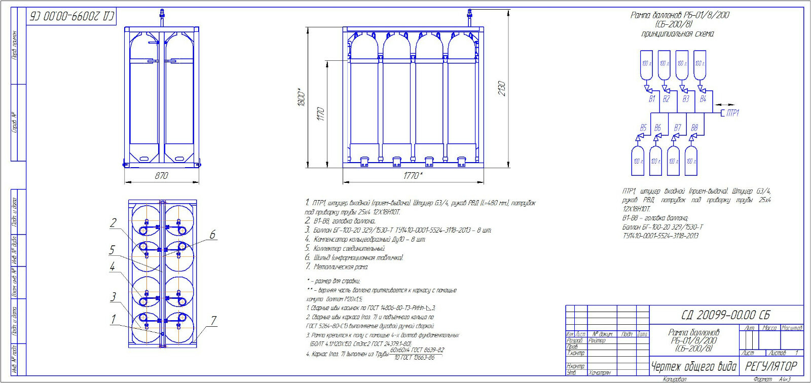
Секция баллонов СБ, состоит из одного или более металлических контейнеров, с элементами крепления баллонов, соединительного коллектора высокого давления со штуцерами, манометром, предохранительным клапаном и отсечный вентилем для последующего подключения к щитам баллонов (ЩБ). Соединение баллонов с коллектором выполняется через компенсатор (змеевик). Баллоны присоединяются к секции с помощью компенсационных трубок (змеевиков). Один конец трубки присоединяется непосредственно к баллону, а второй к штуцеру, установленному на секции.
Устройство и принцип работы.
В комплект поставки секции баллонов СБ (рампы баллонов) входят:
  • Контейнер металлический , с элементами крепления баллонов.
  • Коллектор соединительный с предохранительным клапаном и отсечным вентилем.
  • Компенсационная трубка (змеевик).
  • Манометр.
  • Паспорта, тех. документация.
  • ЗИП.
Варианты исполнения:
СБ-200/n*, n — количество подключаемых баллонов.
СБ-150/n*, n — количество подключаемых баллонов.
РБ-200/n*, n — количество подключаемых баллонов.
РБ-150/n*, n — количество подключаемых баллонов.
Климатическое исполнение КП-У2 ГОСТ 15 150 в диапазоне температур окружающего воздуха от -45 С до +40С.
Секция баллонов СБ-150/18
Обозначение по чертежу
Максимальное рабочее давление Рmax. МПа (кгс/см2).
Номинальный запас сжатого воздуха, хранимого в СБ, нм3
СД 20089-00.00
15 (150)
108
Рабочая среда.
Присоединительные размеры штуцера входного (прием-выдача), патрубок под приварку трубы 16х2,5, материал Сталь 20.
Неиспользуемый остаток сжатого воздуха, хранимого в СБ, при давлении 1,0 МПа (10 кгс/см2), нм3.
Давление срабатывания предохранительного клапана ПК1 Рпр. МПа (кгс/см2).
Возможные утечки сжатого воздуха за 15 суток хранения (5 % от номинального запаса), нм3.
Полезный запас сжатого воздуха в секции баллонов, нм3.
Воздух (точка выпадения росы не выше минус 55 0С)
М27х2
7
17,5 (175)
5
100
Расчетный потребный запас сжатого воздуха, нм3.
Установленный срок службы, лет
Максимальная интенсивность выдачи сжатого воздуха на поддержание подпора, м3/ч.
Габаритные размеры блоков систем сжатого воздуха (ДxШхВ), мм.
Масса, не более, кг.
100
15
213
1700х850х1700
250
Общие сведения